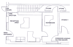
If you have a problem with space it may be a simple case of reorganisation.
 
MWPL can conduct a space planning survey for you producing scaled drawings giving you the answers to your space problem.
 
Click to enlarge
     
 >>  Project management
 >>  Building works
 >>  Electrical works
 >>  Data cabling &
fibre optics
 >>  Environmental control
 >>  Storage & racking
 >>  Suspended ceilings
 >>  Flooring
 >>  Floor coverings
 >>  Air conditioning
& ventilation
 >>  Plumbing
 >>  Decoration
 >>  Partitions
 >>  IT, telecoms, media
 >>  Furniture
 >>  UPS & generators
 >>  Turnkey solutions
 >>  Asbestos
 >>  Regulations
 
   
   
   
   
  © 2004 Mike Waller Projects  |  Site by Astute Enterprise  
   Mike Waller Projects Home Page
 
Offices
Hotels
Warehouses
& Industrial
Schools
& Colleges
Shops
Data Centres
 
• • •
 
Mike Waller Projects
Our Process
Our Clients
Contact Us